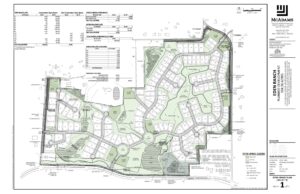
The Eden Ranch development hopes to be a unique spot in Flower Mound that gives residents the option to grow their own food, build a community and create a true rural lifestyle in the growing suburb.
In March 2024, Tyler Radbourne, the mind behind Eden Ranch, said he had always envisioned living in a community focused on family, health and agriculture.
It has been a long journey to secure the blessing from the town, but now a legal dispute and a possible sale of the land is yet another hurdle to overcome.
According to a Zillow listing, the 300 acres of land along FM 1171 in Eden Ranch is up for sale for a whopping $47.5 million.
Denton Central Appraisal District records show most of the land is still owned by Knight Family Ventures, which lent about $31.5 million to Radbourne to pursue his vision. It was purchased from longtime owner Charlie Cummins in 2022.
Multiple court cases are pending between Radbourne, his affiliated companies and Knight Family Ventures over loans that allegedly went into default after a Dec. 27, 2024 maturity date.
Radbourne said, on the advice of his legal counsel, he could not comment at this time due to ongoing litigation.

Knight Family Ventures was not able to comment on the ongoing litigation, but a source close to the situation said the Eden Ranch project is not dead, just being reevaluated.
Radbourne, who resides on the property, has been working on getting his Eden Ranch vision approved by Flower Mound since he first brought the plan to the town in March 2024.
He hosted an informational meeting on the concept plan in November 2024 before heading to the Town’s Environmental Conservation Commission and Parks Board.
Despite Flower Mound Mayor Cheryl Moore’s positive first impression on the project, it wouldn’t be until November 2025 when Town Council would approve the plan – and it needed a supermajority vote on its second try to do so.
Before that was a list of suggestions from the project’s first trip to Council in March 2025, a public information meeting with property neighbors, a healthy discussion with the Parks Board and a four-hour negotiation with the Planning and Zoning Commission.


















