The Eden Ranch residential development crossed the finish line of the ultra-marathon that is the approval process when Flower Mound’s Town Council approved its updated master plan late Monday night.
After a couple of hours of negotiating, reworking, rewording and discussing the plan’s updates, four council members voted to approve the plan, sufficient enough to fulfill the supermajority requirement.
One member, Mayor Pro-Tem Ann Martin, remained steadfast in her opposition to the plan, voting to deny all four items attached to the Eden Ranch development.
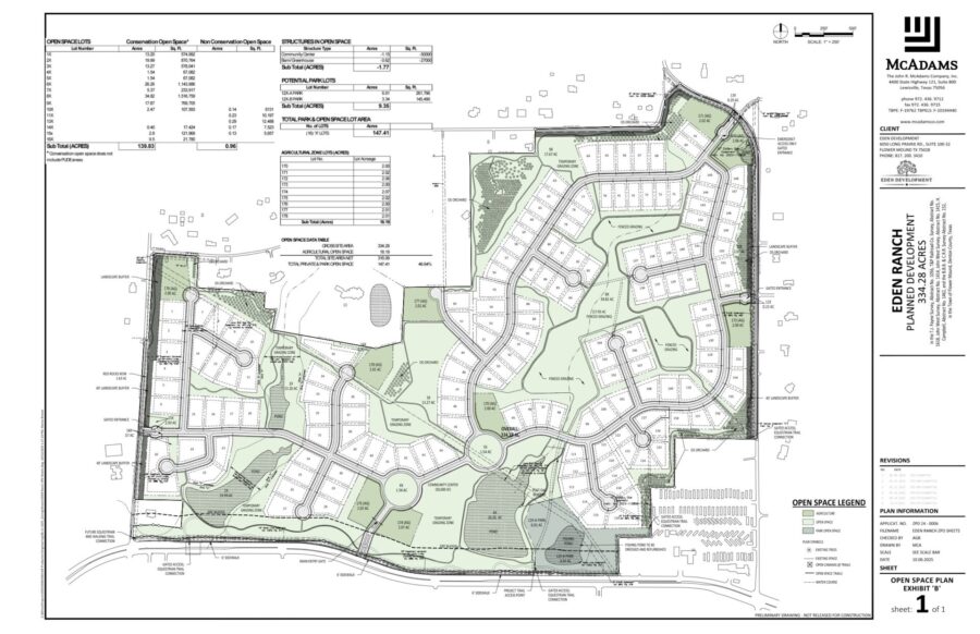
The most controversial item was the development’s zoning from Agricultural District to a Planned Development District for a conservation development with multiple exceptions and modifications to the town’s ordinances and standards.
Most members believed the exceptions could be worked through, but Martin believed it was too far of a deviance from the town’s standards.
She worried the requested minimum lot adjustments, which would allow multiple 3/4-acre and 1-acre lots to have minimum lot widths varying from just less than the town’s 150-foot standard to as thin as 100 feet.
Martin was worried it would make the development look high-density.
“It’s a lot of exceptions for a development that is supposed to be part of a conservation district,” said Ann Martin.

Council ended up allowing one lot with a minimum width of 100 feet and 25 others with varying minimum widths ranging from 110 feet to less than 150 feet. This dropped the number of decreased lot widths from nearly 50 to 26.
Deputy Mayor Pro-Tem Adam Schiestel said the smaller lot widths would allow property owners to take advantage of the natural landscape that Eden Ranch aspires to show off.
Another request all council members had an issue with was Eden Ranch’s request for the option of accessory dwelling units on all lot sizes, which would be an additional housing unit on a landowner’s property.
According to town standards, any ADUs must have running water, cooking capabilities and sewage capabilities.
Eden Ranch owner Tyler Radbourne and team said the ADUs could be used a housing option for residents’ parents instead of a nursing home.
However, Mayor Cheryl Moore and the other council members were weary about allowing ADUs without a special use permit, giving the town the chance to approve or deny the request.
“We went to the Texas legislature about ADUs, so I think it’s an important discussion to have,” said Moore. “It’s important because we don’t want people by right to just go and build ADUs. It impacts traffic, drainage and [first responder] response time.”
Instead of allowing ADUs on all Eden Ranch lots, Town Council approved the addition of ADUs with a special use permit request to council.
Planning and Zoning unanimously recommended the updated master plan at its Oct. 27 meeting with many conditions.
Other notable conditions voted on by Town Council included:
- Trees not on the town’s approved tree list were approved to be planted in open space, but will not count toward the tree requirement.
- A minimal emergency access gate at the northeast corner of the development, leading to the intersection of Shiloh Road and Kings Road, was eliminated after the fire department said it wouldn’t impact crew response time much. The road would end in a cul-de-sac, so residents can turn around within the community.
- The development’s maximum coverage for each lot was approved to be 25% instead of Eden Ranch’s requested 30%, which would help accommodate for accessory units added to the property.
- Wording in the plan was adjusted to not use any pesticides or rodenticides in open space areas.
- The parkland dedication of more than nine acres, almost double the amount required by the town, was approved.
- A thoroughfare plan amendment, also recommended approval during P&Z’s Oct. 27 meeting, was approved by council.

Radbourne bought the ranch on FM 1171 from longtime owner Charlie Cummings nearly three years ago. Eden Ranch lies within the Cross Timbers Conservation Development District and contains 335-acres of agriculture-zoned land north of FM 1171 between Shiloh Road and Red Rock Lane. Read more about the ranch here.
“For maybe the first time in town history, neighbors and supporters spoke from their hearts in support of Eden Ranch and me,” said Radbourne. “A common theme being Eden Ranch raising the standard of how development should be and the Radbourne family being people of impeccable character.
“We’ve never had this many people show up in support of a development project, it’s truly a statement of what can happen when people come together to do something historical. Eden Ranch aims to raise the standard in development and community.”



















