A proposed commercial development that caused a stir on social media last week was approved by the Argyle Town Council on Monday evening.
The unanimous decision was enough to override the Planning and Zoning Board’s unanimous recommendation for denial at its Oct. 1 meeting.
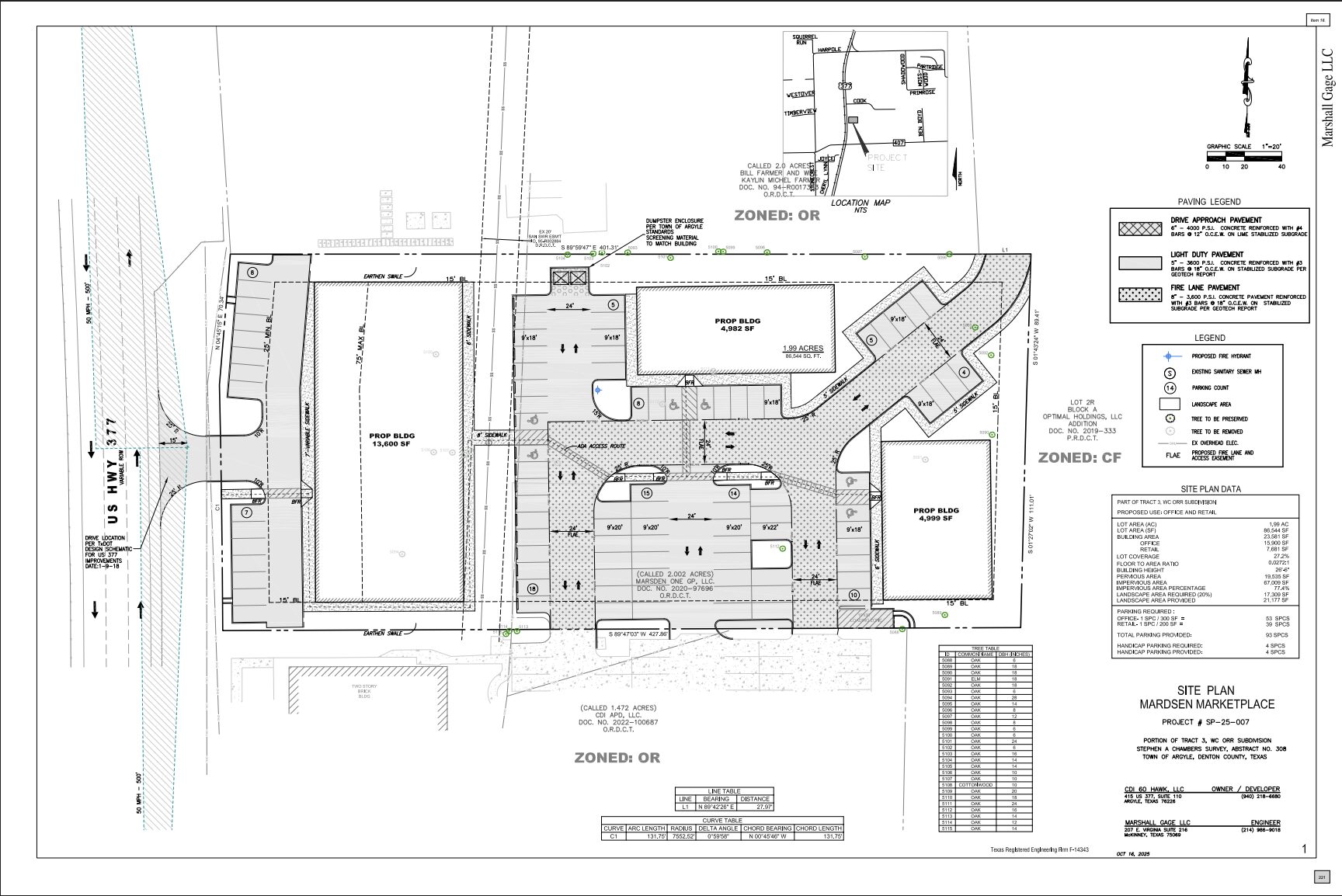
Colo Development Partner’s three-building, 23,000-square-foot development, called Argyle Market Place, will be located just south of Little Joe’s Farmstead restaurant along Hwy 377 just south of Cook Street.
According to town documents, the new site plan for the development addressed one of many concerns from Jim Reid, the owner of Little Joe’s Farmstead and Argyle Christian Academy next door to Argyle Market Place, who said he believed approval of the development would run him out of business.
Reid was concerned with the proposed plan to connect the parking lots between his businesses, Rapid Med Urgent Care and Argyle Market Place.
With road widening work starting in the next year on Hwy 377, access to the properties would be limited. The lot connection would provide emergency access, which is required by Denton County Emergency Service District No. 1 and 2 before Argyle Market Place begins vertical construction.
The fire department proposed a large, metal gate that could only be unlocked by first responders, which would suffice for emergency access and couldn’t be used for through traffic.

Instead, the new plan approved on Monday night wraps the access around the back of the businesses instead of connecting the three parking lots.
Although there was originally a requirement to connect the parking lots, Argyle Town Manager Mike Sims offered Little Joe’s and Rapid Med the opportunity to rework plans that would prevent an access road from being built through the parking lots of the properties in the future.
Argyle Mayor Ron Schmidt said the goal of the plan is to work with Little Joe’s, not against it.
“We want this to complement Little Joe’s and create something that brings in more than just Argyle [residents], but customers from all over,” he said.
Despite the changes, Reid still had concerns about parking.
Many Argyle and surrounding residents spoke in favor of Reid’s concerns, but also echoed the sentiments of wanting a walkable area with a nature trail, which is planned behind the new development.
“We’re all one big community and we’re all neighbors,” said Schmidt. “When we’re passionate about something, emotions come out and I appreciate everyone’s comments.”
The developer plans to bring in primarily office, service and retail businesses. However, if Colo were to land a restaurant, they will have to work out a shared parking solution, per a development agreement with the town.
A deal between the Town and the developer puts Argyle Market Place on the hook for shared parking for the Argyle Nature Trail, providing a restroom that can be used by Nature Trail visitors and allowing space to be used for the Argyle Farmer’s Market.
In return, the Town’s Municipal Development District will reimburse the developer $300,000 to cover “infrastructure expenses” and waive $195,000 in permit fees.
As the development progresses, Sims said the Town will continue to work with the neighboring property owners to address any issues.


















